Basement Renovation in Swampscott
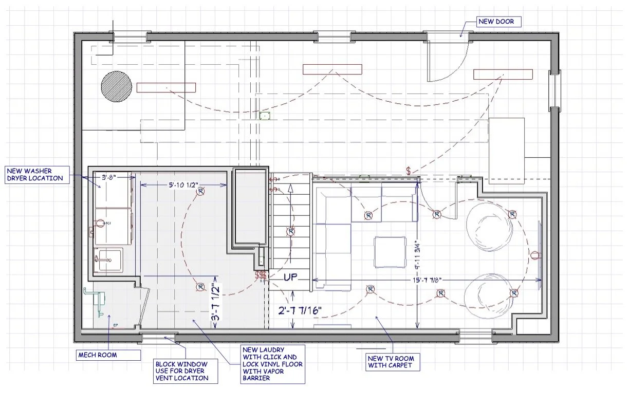
PROJECT: Wolfe Design Build transformed this basement in Swampscott into a space that was both functional and comfortable. Our design included a family room space as well as a new laundry room. We added wood framing, insulation, board and plaster, new windows, and a new staircase.
