Services
At Wolfe Design Build, our work goes beyond construction. We guide you through the decisions that shape your home, helping you understand what’s possible, what it costs, and how to move forward with confidence.
We partner with homeowners to plan and execute thoughtful, high-quality renovations.
We focus on larger-scale residential projects where careful planning makes a meaningful difference.
Kitchens+
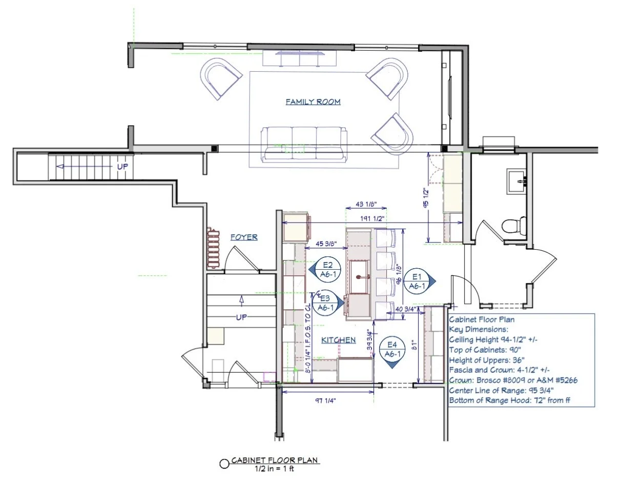
Complete kitchen renovations that improve flow, function, and everyday living, guided by thoughtful architectural planning. Through detailed layouts and construction drawings, we ensure every element is considered, resulting in a kitchen that balances aesthetics and practicality.
First-Floor Transformations
We rework first-floor layouts to better support modern living, guided by custom architectural planning. Through detailed layouts and construction drawings, we improve flow and functionality, often incorporating open-concept kitchens, added bathrooms, mudrooms, and better circulation.
Additions & Whole-Home Renovations
Whether expanding your home or reimagining it entirely, we focus on seamless integration, smart design, and detailed planning, creating spaces for modern living while preserving your home’s unique character.
We design primary suites as true retreats—spaces that bring together comfort, functionality, and refined detail. From spa-like bathrooms to custom closets and serene bedrooms, every element is tailored to support how you start and end your day.
Learn more >
Second-Floor & Primary Suites
Design + Build, Fully Integrated
Our design-build approach brings everything under one roof including design, architectural planning, budgeting, and construction so your project stays aligned from start to finish.
Instead of juggling multiple teams, you work with one cohesive group that understands your goals from the very beginning. The result is a more efficient process, clearer communication, and a better overall experience.
A Clarity-First Design Phase
Every project begins with a structured design phase focused on defining the right path forward.
We handle the foundational work that sets your project up for success, including:
Detailed field measurements of your existing home
As-built drawings and architectural plans
Layout and space planning options
Scope development and prioritization
Realistic budget ranges and cost guidance
Clear evaluation of tradeoffs between design, cost, and complexity
This is where the most important decisions are made, before construction even begins.
Planning That Reduces Surprises
A significant part of what we do happens before construction ever begins.
Through detailed measuring, architectural drawings, and pre-construction planning, we align scope, budget, and expectations early, so the build phase is more predictable and less stressful.
This approach helps avoid the common pitfalls of remodeling: unclear scope, shifting budgets, and decisions made too late.
“Matt and his team are so wonderful to work with - both in terms of craftsmanship but also with their excellent communication and ability to deliver a beautiful, well-built project on time!
They were a great ‘one-stop shop’ as well as a valuable resource for working within the parameters of our historic district.”
- Marisa F., Swampscott
Discover what it's like to partner with Wolfe Design Build on your home renovation journey, from the initial concept to the final reveal.
We’re a good fit for homeowners who:
Are considering a significant renovation or addition
Want to understand costs and options
Value thoughtful planning and professional guidance
Prefer a streamlined, all-in-one team
Our clients aren’t looking for quick estimates. They’re looking for a clear plan and a well-executed result.
Build with a Plan
Every successful renovation starts with a clear plan.
Our process is designed to help you make informed decisions, align your vision with your investment, and move forward with confidence.
